Enfin
chez vous !

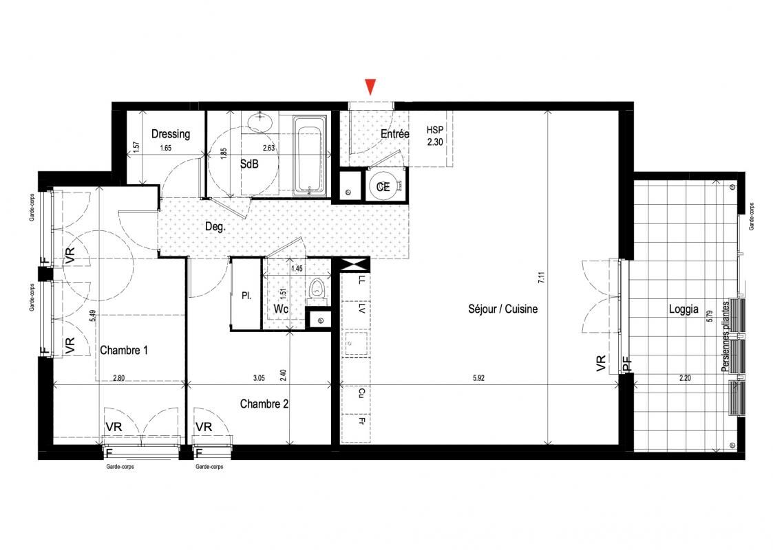
T3 de 79m2 et sa loggia de 12m2
 / Marseille 10eme
 / 410 616 €
 / T3

+4 Afficher toutes les photos
Afficher le diaporama

1 lot disponible

Lot Prix Surface  
Appartement 3 pièces 410 616 € 79 m2 d'infos
Voir tous les lots disponibles Fermer
  • Appartement neuf 3 pièces 79 m² Marseille 10eme 13010
  • Contacter le promoteur

    AFFICHER LE NUMÉRO 04 84 83 03 44

    NOVANEA
    305 avenue des templiers
    13400 Aubagne

Descriptif du programme

T3 de 79m2 et sa loggia de 12m2  / Marseille 10eme
410 616 €
Appartement T3 de 79 m² avec Parking – Marseille 10ème Au cœur du paisible 10ème arrondissement de Marseille, découvrez ce magnifique T3 de 79 m², situé dans une résidence intimiste et verdoyante, à deux pas du massif de Saint-Loup. Un Intérieur Spacieux et Fonctionnel Séjour lumineux : une pièce de vie de 38 m² avec cuisine ouverte, baignée de lumière grâce à une porte-fenêtre donnant sur un espace extérieur agréable. Espace nuit optimisé : deux chambres, dont une grande de 14 m², une salle de bain moderne, des toilettes séparées et un dressing intégré. Des Prestations Haut de Gamme Exposition ouest pour une luminosité optimale. Volets roulants électriques, vidéophone pour une sécurité renforcée. Parking inclus pour un confort au quotidien. Un Emplacement Idéal Situé dans un cadre verdoyant et calme, au pied du massif de Saint-Loup, vous profiterez d'un environnement dynamique avec des infrastructures sportives et culturelles, entouré d'arbres fruitiers et offrant une vue dégagée. Ce bien rare allie confort, modernité et emplacement privilégié. Une opportunité à saisir ! Référence du programme : « 13010_679_AP » Les frais sont à la charge du promoteur. Présentation complète du projet sur demande. Tous les appartements présentés dans cette annonce sont actuellement disponibles chez notre partenaire promoteur au moment de sa création et régulièrement mis à jour. “Les informations sur les risques auxquels ce bien est exposé sont disponibles sur le site Géorisques http://www.georisques.gouv.fr”. DPE vierge - Photos de présentation et mise en ambiance non contractuelles – Tarifs et disponibilités modifiables par le promoteur.

1 lot disponible

Lot Prix Surface  
Appartement 3 pièces 410 616 € 79 m2 d'infos
Voir tous les lots disponibles Fermer
Etat d’avancement : N.C. Certifications : RT2012
Parking Ascenseur
Nb. Etages : 3 Accès handicapés
Interphone Haut de gamme
Vue dégagée Cuisine ouverte
Calme Spacieux
Lumineux

Contacter le promoteur

Contacter le promoteur

AFFICHER LE NUMÉRO 04 84 83 03 44

NOVANEA
305 avenue des templiers
13400 Aubagne

Adresse : 7, place guy durand MARSEILLE 10EME 13010

Programmes neufs similaires

Recevez les programmes similaires directement par mail