Enfin
chez vous !

VILLA 4 PIÈCES DE 84M2 À SAISIR
 / Saint-Cannat
 / 389 000 €
 / T4

+1 Afficher toutes les photos
Afficher le diaporama

1 lot disponible

Lot Prix Surface  
Villa / Maison 4 pièces 389 000 € 84 m2 d'infos
Voir tous les lots disponibles Fermer
  • Maison neuve 4 pièces 84 m² Saint-Cannat 13760
  • Contacter le promoteur

    AFFICHER LE NUMÉRO 04 84 83 03 44

    NOVANEA
    305 avenue des templiers
    13400 Aubagne

Descriptif du programme

VILLA 4 PIÈCES DE 84M2 À SAISIR  / Saint-Cannat
389 000 €
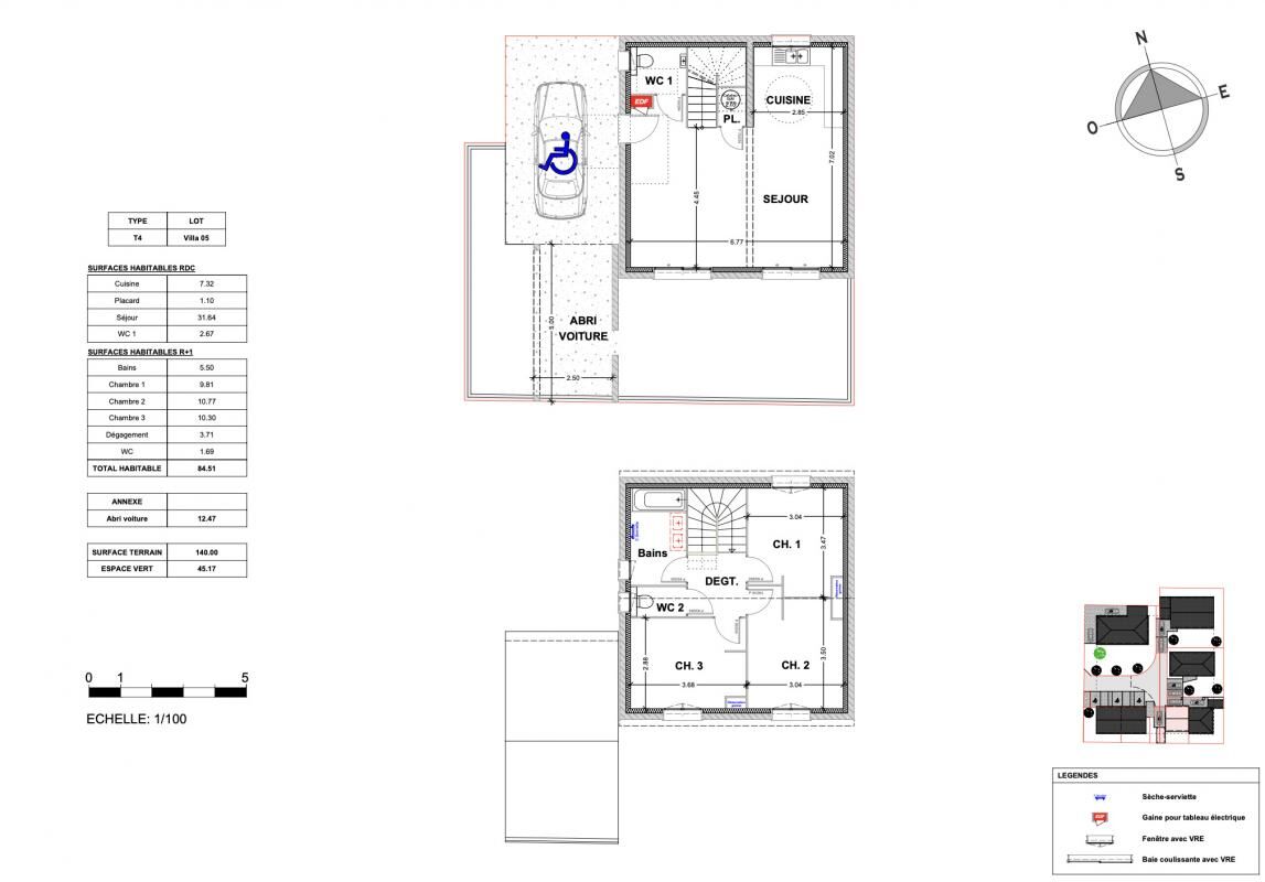
Située au cœur de Saint-Cannat, ce havre de paix vous propose un cadre de vie exclusif. Des volumes généreux et une conception moderne : Avec ses 84,51 m² habitables répartis sur deux niveaux, cette villa a tout pour séduire. Le séjour de 31,64 m² baigné de lumière vous invite à la détente, tandis que la cuisine ouverte allie fonctionnalité et design minimaliste. À l'étage, trois chambres pensées pour le confort de chacun et une salle de bains de, équipée d'un sèche-serviette, pour vos moments de détente, et un second WC à l'étage pour plus de praticité. Un abri voiture rien que pour vous Accessible, spacieux et sécurisé, l'endroit parfait pour se garer sans tracas. Le confort ne s'arrête pas aux murs de la maison. Sur un terrain de 146 m², vous profiterez d'un espace vert de 45,17 m², idéal pour vos moments en plein air. Une terrasse à aménager selon vos envies, parfaite pour des soirées entre amis ou des matins tranquilles. Venez vivre à Saint-Cannat, une commune où la tranquillité du Sud se marie à merveille avec les commodités urbaines. Ce bien unique n'attend que vous pour révéler tout son potentiel. Ne cherchez plus, votre nouvelle vie commence ici. Référence de l'annonce : 13760_825 Présentation complète du projet sur demande. Tous les appartements présentés dans cette annonce sont actuellement disponibles chez notre partenaire promoteur au moment de sa création et régulièrement mis à jour. “Les informations sur les risques auxquels ce bien est exposé sont disponibles sur le site Géorisques http://www.georisques.gouv.fr”.DPE vierge - Photos de présentation et mise en ambiance non contractuelles – Tarifs et disponibilités modifiables par le promoteur.

1 lot disponible

Lot Prix Surface  
Villa / Maison 4 pièces 389 000 € 84 m2 d'infos
Voir tous les lots disponibles Fermer

Contacter le promoteur

Contacter le promoteur

AFFICHER LE NUMÉRO 04 84 83 03 44

NOVANEA
305 avenue des templiers
13400 Aubagne

Adresse : impasse Écureuils SAINT-CANNAT 13760

Programmes neufs similaires

Recevez les programmes similaires directement par mail